Kassettenplatten
Zur Navigation springen
Zur Suche springen

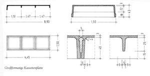
Sie werden als großformatige Dach- und Deckenelemente verwendet und sind für Bauten geeignet, in denen keine Minimaldicke der Platten wegen des Feuerschutzes vorgeschrieben ist. Der Vorteil der Kassettenplatten gegenüber anderen großformatigen Fertigteilen besteht wie bei Kassettendecken in einer hohen Tragfähigkeit bei geringem Eigengewicht.
